Espace propriétaire
fr

Votre recherche

Exclusivité
Nouveauté
Bouray-sur-Juine (91850)

10 pièces - 250,01 m²

Ensemble immobilier comprenant : 1 grande maison + appartement de type F2

610 000 €
Ref : 8
A propos de ce bien

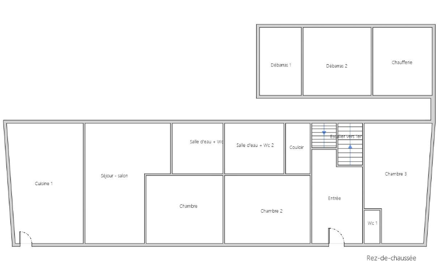
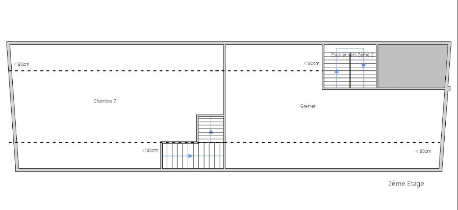
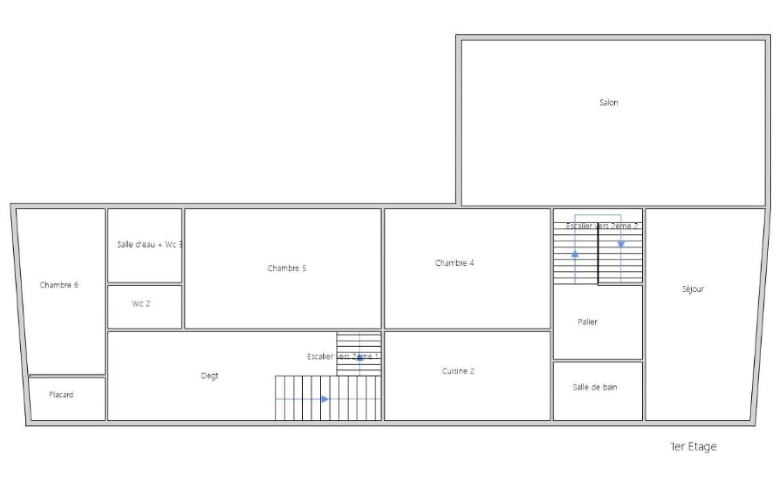
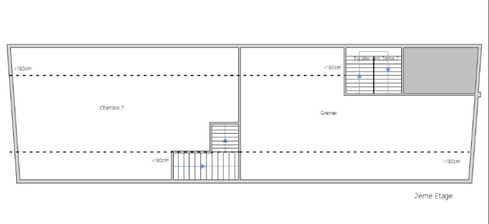
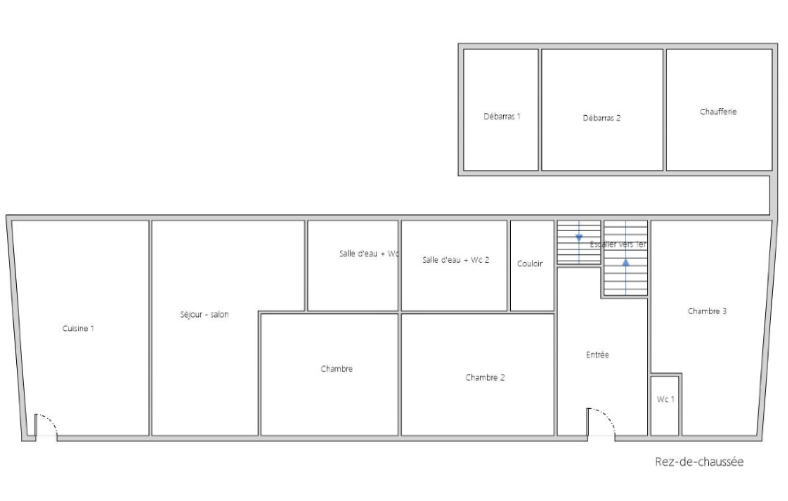
Maison principale de 6 chambres ( possible 8 ) comprenant au RDC : une entrée, une chambre avec wc + lavabo, une salle de sport ( ou autre ) une salle d'eau avec wc. Au 1er étage : un palier qui dessert : un bel espace de vie avec cheminée, une cuisine indépendante aménagée et équipée, une salle de bain, 2 chambres, une suite parentale avec (salle d'eau + wc) , un wc indépendant. Au 2 ème étage : un grand espace pouvant accueillir 2 chambres avec vélux, une grande chambre + bureau + ( salle de bain possible ). Le tout avec deux cours pavées , deux espaces de verdure, 3 locaux ( chambre froide ou autre utilité + chaufferie + pièce de stockage/rangement )

L'appartement de type F2 avec son entrée indépendante et ses 2 places de parking privatives. Il comprend : une entrée, une cuisine aménagée et équipée ouverte sur un espace de vie traversant et lumineux, une salle d'eau avec wc + une chambre.

En plein centre ville. DPE en C

Nombreuses possibilités ( peut convenir à un investisseur ou à plusieurs familles ) + aménagement proposé avec l'IA

A voir rapidement


Les informations sur les risques auxquels ce bien est exposé sont disponibles sur le site Géorisques
Descriptif de ce bien
Général
Code postal 91850
surface terrain 467 m²
Nombre de chambre(s) 7
Nombre de pièces 10
Nombre de niveaux 3
Détails
Nb de salle de bains 1
Nb de salle d'eau 3
Cuisine Séparée
Type de cuisine Equipée
Interphone NON
Visiophone NON
Balcon NON
Terrasse OUI
Murs mitoyens 1
Cave OUI
Nombre de parking 6
Année de construction 1900
Financier
Prix de vente 610 000 €
Les honoraires d'agence seront intégralement à la charge du vendeur  
Taxe foncière annuelle 2 579 €
Energie
DPE GES
Copropriété
Copropriété NON
Contacter pour ce bien
L'agence
Téléphone 01 87 46 09 46
Adresse
91340 Ollainville

* Champ obligatoire

Les informations recueillies sur ce formulaire sont enregistrées dans un fichier informatisé par La Boite Immo agissant comme Sous-traitant du traitement pour la gestion de la clientèle/prospects de l'Agence / du Réseau qui reste Responsable du Traitement de vos Données personnelles. La base légale du traitement repose sur l'intérêt légitime de l'Agence / du Réseau. Elles sont conservées jusqu'à demande de suppression et sont destinées à l'Agence / au Réseau. Conformément à la loi « informatique et libertés », vous disposez des droits d’accès, de rectification, d’effacement, d’opposition, de limitation et de portabilité de vos données. Vous pouvez retirer votre consentement à tout moment en contactant directement l’Agence / Le Réseau. Consultez le site https://cnil.fr/fr pour plus d’informations sur vos droits. Si vous estimez, après avoir contacté l'Agence / le Réseau, que vos droits « Informatique et Libertés » ne sont pas respectés, vous pouvez adresser une réclamation à la CNIL. Nous vous informons de l’existence de la liste d'opposition au démarchage téléphonique « Bloctel », sur laquelle vous pouvez vous inscrire ici : https://www.bloctel.gouv.fr Dans le cadre de la protection des Données personnelles, nous vous invitons à ne pas inscrire de Données sensibles dans le champ de saisie libre.
Ce site est protégé par reCAPTCHA, les Politiques de Confidentialité et les Conditions d'Utilisation de Google s'appliquent.

Découvrir nos outils